25 Currawong Avenue, Normanhurst
House
Modern family residence set in tranquil surrounds
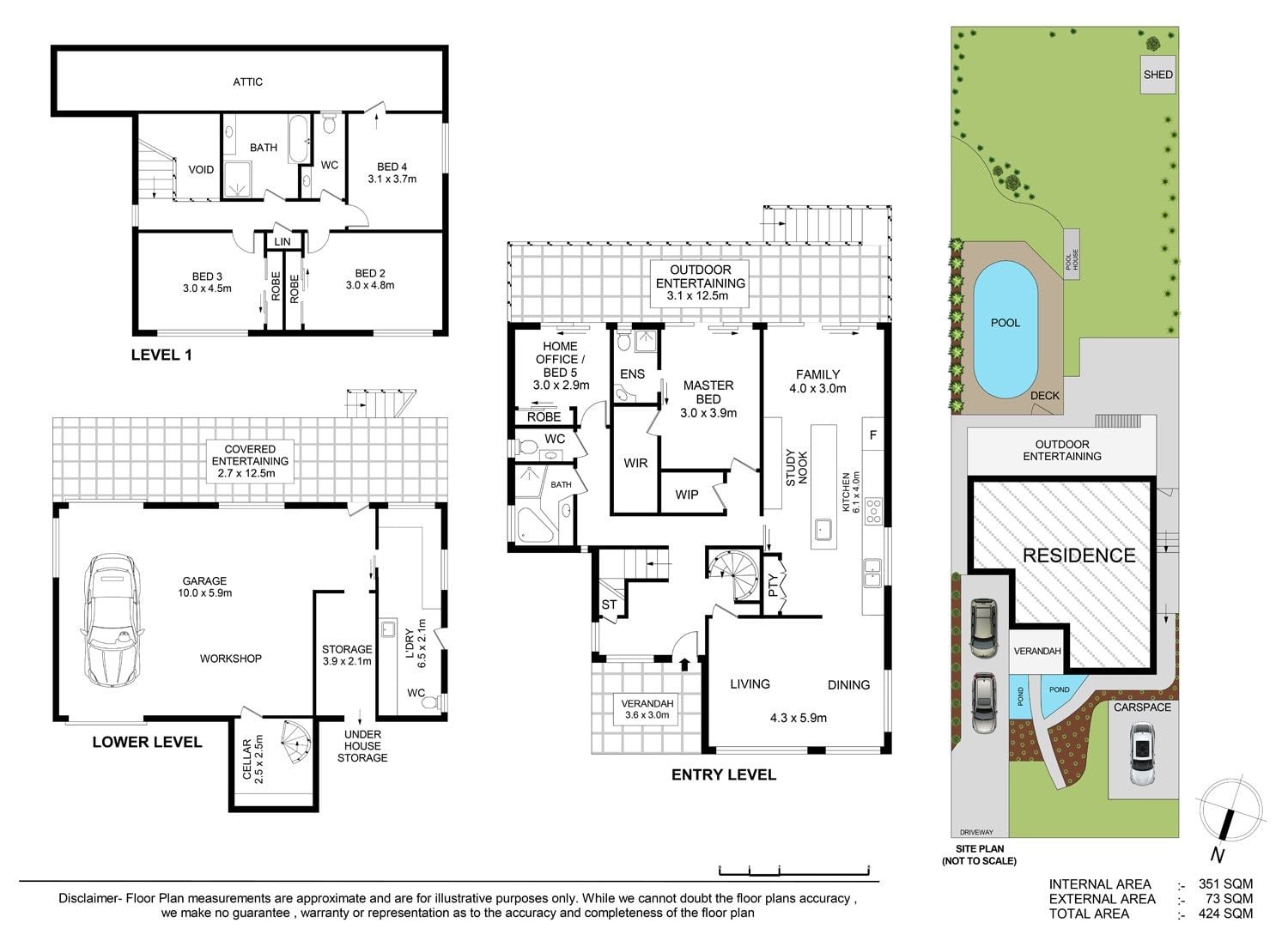
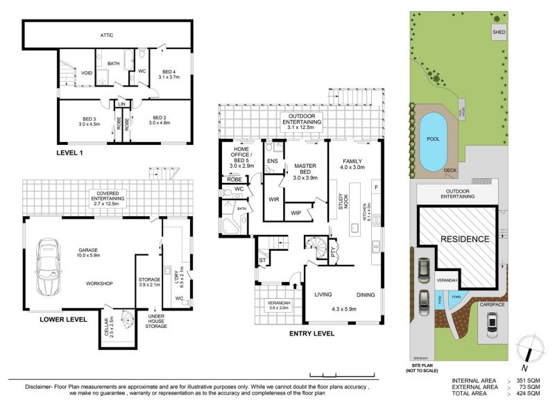
Peacefully positioned and located within a sought-after and leafy pocket of Normanhurst, this family residence offers a lifestyle of tranquil comfort and has been meticulously renovated to create a modern space. Set over a spacious three levels which showcase exceptional indoor/outdoor living and boast a leafy backdrop complete with a pool, this home enjoys close proximity to an array of amenities including Normanhurst Village, parks, Normanhurst Station, and schools including Normanhurst Public School, Loreto Normanhurst, Normanhurst Boys High School and Abbotsleigh.
- Four spacious bedrooms with optional fifth bedroom or home office
- Luxurious walk-in robe and ensuite to master bedroom
- Modern kitchen with large gas cooktop, island and stainless steel appliances
- Combined living and dining separate from family area and study nook
- Quality finishes, plantation shutters, split system air-con
- Sparkling and elevated pool to the rear surrounded by timber decking
- Expansive backyard surrounded by trees and greenery
- Well maintained gardens with a pond at the front
- Ample storage including workshop, cellar and attic
- Outdoor entertaining balcony overlooks rear yard
- Double lock up garage and ample off street parking
For further information please contact Josh Saliba on 0400 231 424.
We have obtained all information in this document from sources we believe to be reliable, however, we cannot guarantee its accuracy. Prospective purchasers are advised to carry out their own investigations.
- Four spacious bedrooms with optional fifth bedroom or home office
- Luxurious walk-in robe and ensuite to master bedroom
- Modern kitchen with large gas cooktop, island and stainless steel appliances
- Combined living and dining separate from family area and study nook
- Quality finishes, plantation shutters, split system air-con
- Sparkling and elevated pool to the rear surrounded by timber decking
- Expansive backyard surrounded by trees and greenery
- Well maintained gardens with a pond at the front
- Ample storage including workshop, cellar and attic
- Outdoor entertaining balcony overlooks rear yard
- Double lock up garage and ample off street parking
For further information please contact Josh Saliba on 0400 231 424.
We have obtained all information in this document from sources we believe to be reliable, however, we cannot guarantee its accuracy. Prospective purchasers are advised to carry out their own investigations.
